Jag och min sambo ska bli sambos…Med min mamma.
Vi ska bo tillsammans på den tomt som hon ärvt från sina föräldrar. Vi kommer riva huset som står där och bygga upp ett hus på ca 250m2 där mamma får en liten lägenhet i huset.
Detta är något vi har pratat om i flera år och jobbat med nu under ett par års tid. Eftersom vi har haft tomten så har vi inte behövt stressa någonting utan har jobbat länge och väl med planritningen som vi först nu är 100% nöjda med.
I September 2012 var vi och tittade på ett visningshus i Bunkeflostrand byggt av huscompagniet. Innan dess hade vi varit i kontakt med Fiskarhedenvillan, Götenehus och Trivselhus. Götenehus la vi ner efter att de informerade att man inte kunde bygga generationsboende. Jag hade berättat för dem att vi kunde anpassa oss så det inte skulle bli tydligt på ritningen att det var ett generationsboende. Att vi kunde dela hus och att det bara är en person till som ska bo med oss. Vi är inte två familjer, utan en med 3 vuxna. Dock var det säljaren där som ”tackade nej” genom att vara så trångsynt. ”Man kan inte ha två ingångar” sa han. Punkt…
Trivselhus gjorde en ritning. En ritning som var bra, men deras hus är lite för trånga och lite för mycket trä… Så är det ju med trähus, men jag känner att deras typ av planlösningar inte är helt hundra. De gjorde dessutom mammas del alldeles för liten. Hon fick en pytteliten etta, och inte mer.
Fiskarhedenvillan gjorde en kanonfin ritning, men den var mer än 1 miljon över vad vi var villiga att betala. Och man vet ju med hus att där man hamnar, där måste man lägga till en halv miljon till innan man har allt som inte ingår men som man behöver. Så här såg trivselhus ritning ut.
Denna ritning var vi nöjda med! Så här i efterhand kan jag säga att jag är så glad att det inte blev detta huset. Idag ser jag inget med ritningen som är bra… Men jag kan också ha blivit lite skadad. Det som gjorde att vi fick ändra var att jag efter många om och men (läs försök att få hjälp) ritade upp möbler och insåg att vardagsrummet inte alls var så stort som vi trott. Och sen att Huscompagniet upptäckte att det inte fick plats på tomten. Detta blev alltså vår räddning.
Jag hörde av mig dagen efter och berättade precis hur vi tänkte. Då sa Håkan att han redan hade en idé om hur huset kunde se ut och frågade om han kunde få visa sin skiss. Skulle vi välja hans skiss så betalar vi, gillar vi den inte behövde vi inte betala. Sagt och gjort. Själklart var detta jättebra. Även om han sa att han funderade på bara en huskropp och jag tänkte att det var ett stort skämt. Skulle väl aldrig bli bra!
Men! Vi gillade hans skiss. Där fanns tanke bakom och det blev ett helt annat liv i huset (svårt att förklara, men ritningarna säger väl allt). På ritningarna nedan är där endast ett fåtal ändringar gjorda. Men vi anser att det är Håkan Ohlsson som ritat vårt hus, och inte Huscompagniet. Huscompagniet tror att de hade kunnat komma fram till samma lösning. Jag är ytterst tveksam. Dock måste jag erkänna att Huscompagniet visade att de också kunde när de efter många om och men satte in en arkitekt för att fixa till det sista. Arkitekter har ett helt annat öga för att se vad som kan fungera än man själv har.
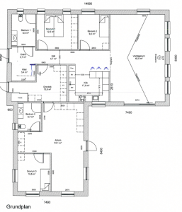
Så här blev ritningen. Nedanvåning och ovanvåning skiljs med ett betonggolv som vi har betalat extra för. I vårt hus idag hörs det som att ovanvåningen rivs när barnen är där uppe och leker. Så det kan dämpas ganska bra med ett gjutet betonggolv.
Grovköket blir inte så stort som vi önskar. Vi hade velat ha större ytor. En dröm är ju att ha två tvättmaskiner. Men det får vi nog vänta och se om det finns möjlighet att ha. Det som vi också fick ge lite avkall på var den här klädkammaren. Nu får vi använda grovköket lite till detta. Att slänga in vinterkläder, väskor och skor. Och sen får vi väl bli lite bättre på att hålla ordning så det inte översvämmar med kläder och onödiga grejer som inte används.
Stora fönsterpartier i söder. Vi har valt att ”bara” har fönster från golvet. Alltså inga som sitter högre upp på gavelspetsen. Vi tror att det blir tillräckligt ljust ändå.
En annan sak vi gjort är att öppna mellan vårt sovrum och tvättstugan. Så slipper man packa ner kläderna för att sedan gå runt och in i garderoben. Nu kan vi hänga/lägga in kläderna direkt från tvättstugan. Det tror jag blir bra. Dörrarna mot tvättstuga och mamma är extra massiva, som ytterdörrar för att släppa igenom minimalt med ljud.
